Projektek
Kis fürdőszoba tágasan •
Kétgyermekes család felkérésére készítettem el kis fürdőszobájuk és a különálló WC helyiség terveit. Alapvetően világos csempét szerettek volna, ami ideális egy ilyen kicsi helyiség tágasabbá tételére. A fehér és fekete kontraszt időtálló külsőt varázsol a maga tisztaságával és eleganciájával. Erre kiváló választás volt a CERSANIT Black&White kollekciója.
Formabontó és elegáns megjelenést kölcsönöz a középvonalban futó függőleges dekoráció. A fürdőben és a WC-ben különböző árnyalatú dekor csempe kerül beépítésre, mely kizárja az egyhangúságot.
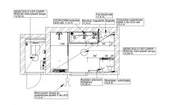
A gyerekek igényeinek megfelelve, a szülők a kád beépítését preferálták a korábbi zuhyany helyett, továbbá itt kellett megoldani a mosógép-szárítógép elhelyezést és a fali kazán is itt kap helyet, amit szekrény takar.
Az IKEA mosdószekrénye és fali tükrös szekrénye nagyon sok tárolóhelyet biztosít. A kazánt takaró szekrény alja egy lenyitható szekrény formájában szennyestartót takar.
A tágasságot fokoztuk, hogy a befelé nyíló ajtót tolóajtóra cseréltük, így nyerve nagyobb teret a fürdőben.
